DIAMOND COMMUNITY CENTER

Class:
Comprehensive Architectural Design Studio

Professors:
Robert Shuman & Fauzia Sadiq Garcia

Semester:
Spring 2019

Program:
Community Center

Location:
1301 Diamond Street, Philadelphia, PA

Software:
Rhino, Revit, Autodesk Cloud Rendering, Autodesk Insight, ElumTools, Photoshop, Illustrator, InDesign

 

Located on an urban edge between the Temple University campus and a North Philadelphia neighborhood, the Diamond Community Center seeks to bridge these two colliding areas. In the spirit of unity and invitation, a diagonal atrium extends off of Temple’s Liacouras Walk and links it to the eastern entrance of the high school to the north of the site, working with existing circulation paths. Taking advantage of an empty, run-down lot as well as Park Street, which has been unrecognized as a street by the City of Philadelphia, a paved extension of Liacouras Walk is also proposed, merging in pedestrians from the campus as well as Broad Street. Adjacent to the path is a new parking lot as well as a new greenspace.

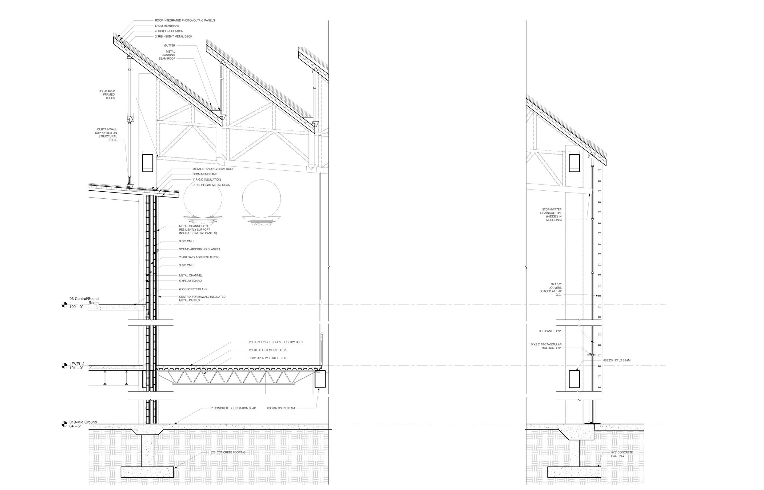
Furthermore, with the goal of meeting the Architecture 2030 energy standard, the building utilizes several sustainable design practices. Perhaps most notably, the proposal features a building-integrated photovoltaic array for which the spine has been rotated at a 30-degree angle to the East-West axis of Philadelphia’s city grid. The sawtooth roof serves as an integrated approach to orient the panels for optimal collection of solar energy as well as to let in diffuse light from the north. It is both a diagrammatic statement as well a functional element, facilitating circulation and cultivating community.

DiamondCommunityCenter_Page_05.jpg

SITE PLAN & SOLAR STUDY

1. Atrium

1A. Gathering Space

1B. Control Desks

2. Performance Center

2A. Auditorium

2B. Back of House

2C. Control Room

3. Public Restrooms

4. Administration Offices

5. Multipurpose Space

6. Daycare Services

6A. Interior Play Space

6B. Waiting Room

6C. Classrooms

6D. Offices & Support

7. Gymnasium

8. Wellness Center

8A. Front Desk

8B. Locker Rooms

8C. Free Weight Area

8D. Machine Area

8E. Staff Offices

8F. Group Exercise Room

9. Food Services

9A. Cafe

9B. Kitchen

9C. Staff Offices

10. Teaching/Meeting Spaces

10A. Classrooms

10B. Arts & Crafts Center

10C. Seminar Rooms

11. Dance Studio

12. Performance Center Auxilliary Spaces

12A. Rehearsal Room

12B. Practice Rooms

12C. Offices

13. Maintenance/Security

14. Building Storage

15. Mechanical Room

BUILDING SECTIONS

WALL SECTION - ATRIUM

WALL SECTION - DAYCARE CENTER

 
RETURN TO GALLERY